当前位置: P站免费版振动筛厂家 > 产品中心 > 轻型精细筛分机 > 正文

适用物料:化工、粮食加工、耐火材料、建材
价格区间:10000-100000元/台
处理能力:100-500t/h
产品别名:平面往复筛
索要优惠报价
销售热线:
13782587121
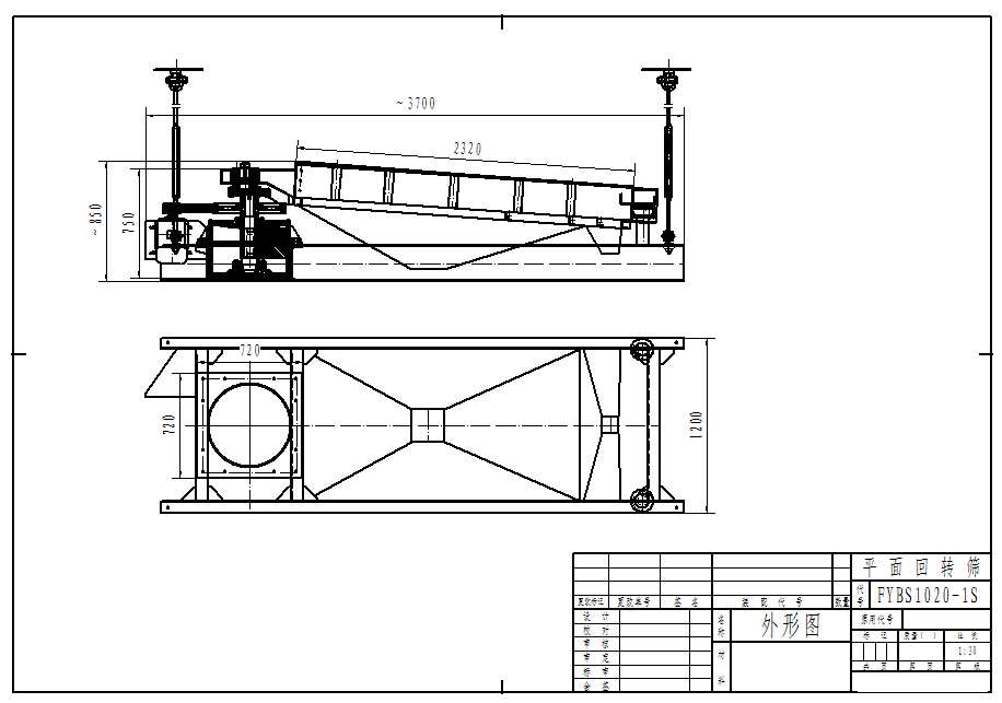
平面回转筛倾角为5~10°的筛体由传动装置驱动。物料运动轨迹在进料端为水平圆周运动,在长度方向逐渐变成椭圆运动,最后在出料端转变成近似往复直线运动。 通过进料口喂入的物料,在平面回转筛体运动作用下,均匀的分布在整个筛网上,并产生自动分级,从而使料层下粒度较小的物料迅速过筛,而上面粒度相对较大的物料则向出料端运动。在移动过程中,由于没有搅拌和垂直跳动,因而其中较小的颗粒紧贴筛面,随时可以过筛。
出料端筛体的运动为近似往复直线运动,是筛理作用逐渐减弱。从而使大于筛孔尺寸的颗粒迅速向出口方向移动,直到排出机外,完成物料的整个筛分。在筛理过程中,不断跳动的弹性跳动小球,有效地防止物料堵塞筛孔,保证了筛理的高效率。平衡块使筛体在运动的过程中各个方向的惯性力都得以平衡,从而保证了筛体运动的平稳性
|
层数 |
型号 |
筛面规格 |
筛箱行程 |
电动机 |
A |
B |
C |
D |
重量 |
|
|
功率 |
转速 |
|||||||||
|
1 |
ACPM1000X1400 |
1000X1400 |
63.5 |
1.5 |
960 |
2731 |
962 |
1168 |
1200 |
715 |
|
ACPM1000X2100 |
1000X2100 |
63.5 |
1.5 |
960 |
3285 |
962 |
1156 |
1200 |
980 |
|
|
ACPM1000X3000 |
1000X3000 |
63.5 |
1.5 |
960 |
4484 |
1035 |
1194 |
1251 |
1200 |
|
|
ACPM1500X2100 |
1500X2100 |
63.5 |
1.5 |
960 |
3460 |
1003 |
1708 |
1759 |
1380 |
|
|
ACPM1500X3000 |
1500X3000 |
76 |
2.2 |
960 |
4232 |
1362 |
1778 |
1892 |
1340 |
|
|
ACPM1500X3600 |
1500X3600 |
76 |
5.5 |
960 |
5098 |
1352 |
1956 |
2048 |
2410 |
|
|
ACPM1200X3600 |
1200X3600 |
76 |
5.5 |
960 |
5263 |
1327 |
2464 |
2556 |
2020 |
|
|
2 |
ACPM1000X2100 |
1000X2100 |
63.5 |
1.5 |
960 |
3743 |
1121 |
1308 |
1378 |
1400 |
|
ACPM1000X3000 |
1000X3000 |
76 |
4 |
960 |
4575 |
1317 |
1270 |
1546 |
1840 |
|
|
ACPM1500X2100 |
1500X2100 |
63.5 |
4 |
960 |
3728 |
1330 |
1781 |
1946 |
1710 |
|
|
ACPM1800X3600 |
1800X3600 |
76 |
7.5 |
960 |
5305 |
1500 |
2256 |
2459 |
3880 |
|
|
ACPM1500X3000 |
1500X3000 |
76 |
7.5 |
960 |
4765 |
1397 |
1956 |
2159 |
2780 |
|
|
ACPM1500X3600 |
1500X3600 |
76 |
7.5 |
960 |
5365 |
1368 |
2032 |
2159 |
3180 |
|
|
3 |
ACPM1000X2100 |
1000X2100 |
63.5 |
5.5 |
960 |
4854 |
1422 |
1435 |
1549 |
2150 |
|
ACPM1500X3000 |
1500X3000 |
76 |
5.5 |
960 |
4765 |
1391 |
1956 |
2159 |
3200 |
|
|
ACPM1800X3600 |
1800X3600 |
76 |
7.5 |
960 |
5200 |
1500 |
2400 |
2500 |
4170 |
|
|
ACPM2000X5000 |
2000X5000 |
92 |
11 |
960 |
5400 |
2000 |
2750 |
2810 |
5500 |
|
Copyright(C) 豫ICP备35991994号