当前位置: P站免费版振动筛厂家 > 产品中心 > 重型矿用振动筛 > 正文

适用物料:块料,颗粒物料
价格区间:1-15万
处理能力:1-2000T/H
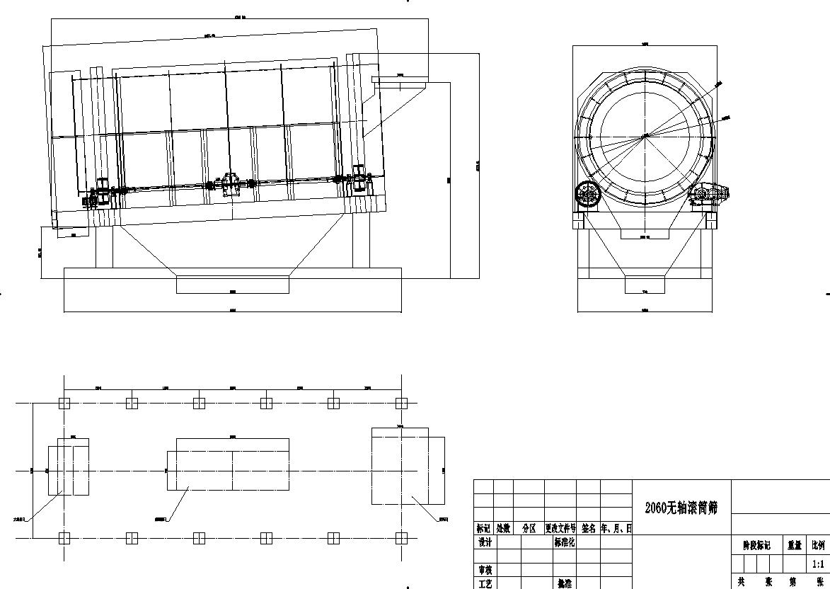
产品别名:滚筒筛
索要优惠报价
销售热线:
13782587121
大型滚筒筛是继国内各大公司生产的普通型网状滚筒 筛之后的又一代新型自清式筛料专用设备,它广泛适用于粒径小于300mm以下各种固体物料的筛分,具有筛分效率高、噪音低、扬尘量小、使用寿命长、维修量 小、检修方便等诸多特点,其筛分能力为60吨/小时~1000吨/小时。也叫做重型滚筒筛、矿用滚筒筛
Copyright(C) 豫ICP备35991994号